
Bauamt
Amt für kommunalen Hochbau / Stadtplanung
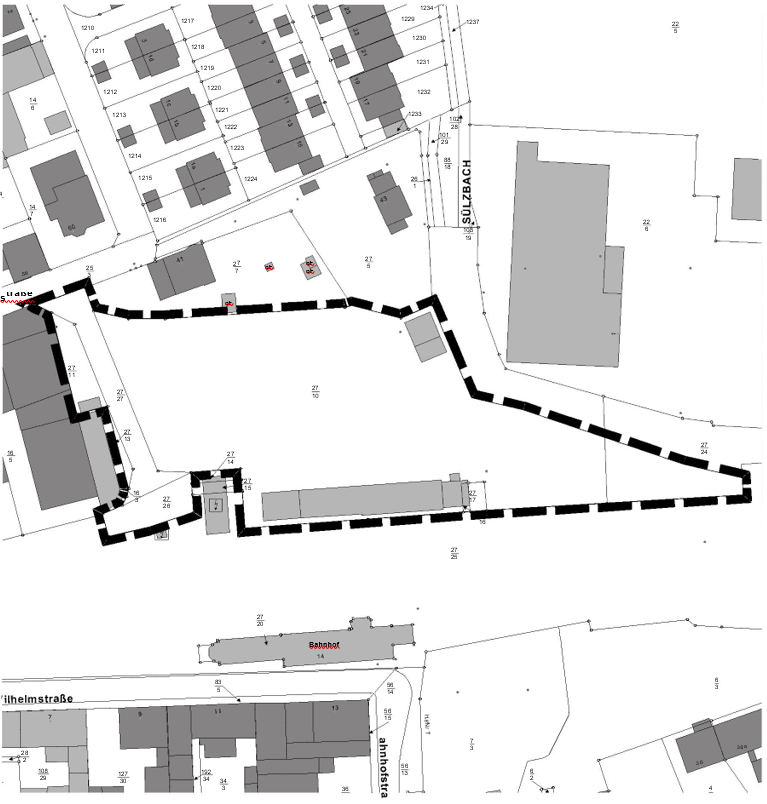
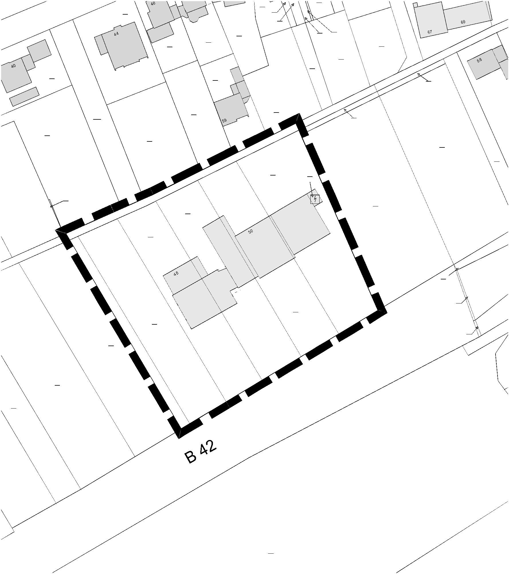
Hier finden Sie alle relevanten Öffentlichen Bekanntmachungen aus dem Amt für Stadtentwicklung und kommunalen Hochbau der Stadt Eltville am Rhein seit 2019 bis heute. Sollte keine Hinweisbekanntmachung angefügt sein, wurde die Öffentliche Bekanntmachung als solche in der Presse veröffentlicht.



















